Philip Johnson’s First House Needs a New Owner
The owners of the concrete residence known as the Booth House in Bedford, New York, are now trying to sell Johnson's 1946 building within a month.

Philip Johnson’s first built commission is on the market, and its owner is anxiously seeking a buyer who may save it from possible demolition. Built in 1946 in Bedford, New York, the concrete residence known as the Booth House also stands as the first postwar house constructed by a Bauhaus-inspired American architect. A precedent of Johnson’s famous Glass House, which was completed three years after, it features many of that New Canaan pavilion’s famous elements, from glass walls to a central, massive brick fireplace that divides the space.

Due to a very particular financial situation, its owners are now trying to sell the building within a month, according to Matt Damora, who grew up in the Booth house before moving out in the ’70s. His parents rented the home in 1955, one year before he was born, from its first, eponymous owners, a couple from New York City searching for a country retreat. They then purchased it in 1964.
“There is significant debt on the property, and because of the way in which the lender acted in originating the loan associated with that debt, we have been in litigation with the lender for seven years,” Damora told Hyperallergic. “We are in settlement talks with the lender.”
Damora and his mother, architect Sirkka Damora, are now conducting a sale themselves as the most assured path towards the house’s preservation. (His father, the architect and architectural photographer Robert Damora, passed away in 2009.) Given its size and the value of land, any other approach to the property’s liquidation would likely lead to the home’s demolition and replacement with a larger residence by a developer. They have only a window of time, however, to seek out a buyer who appreciates its distinct modernist architecture. The starting price for the residence is one million dollars.

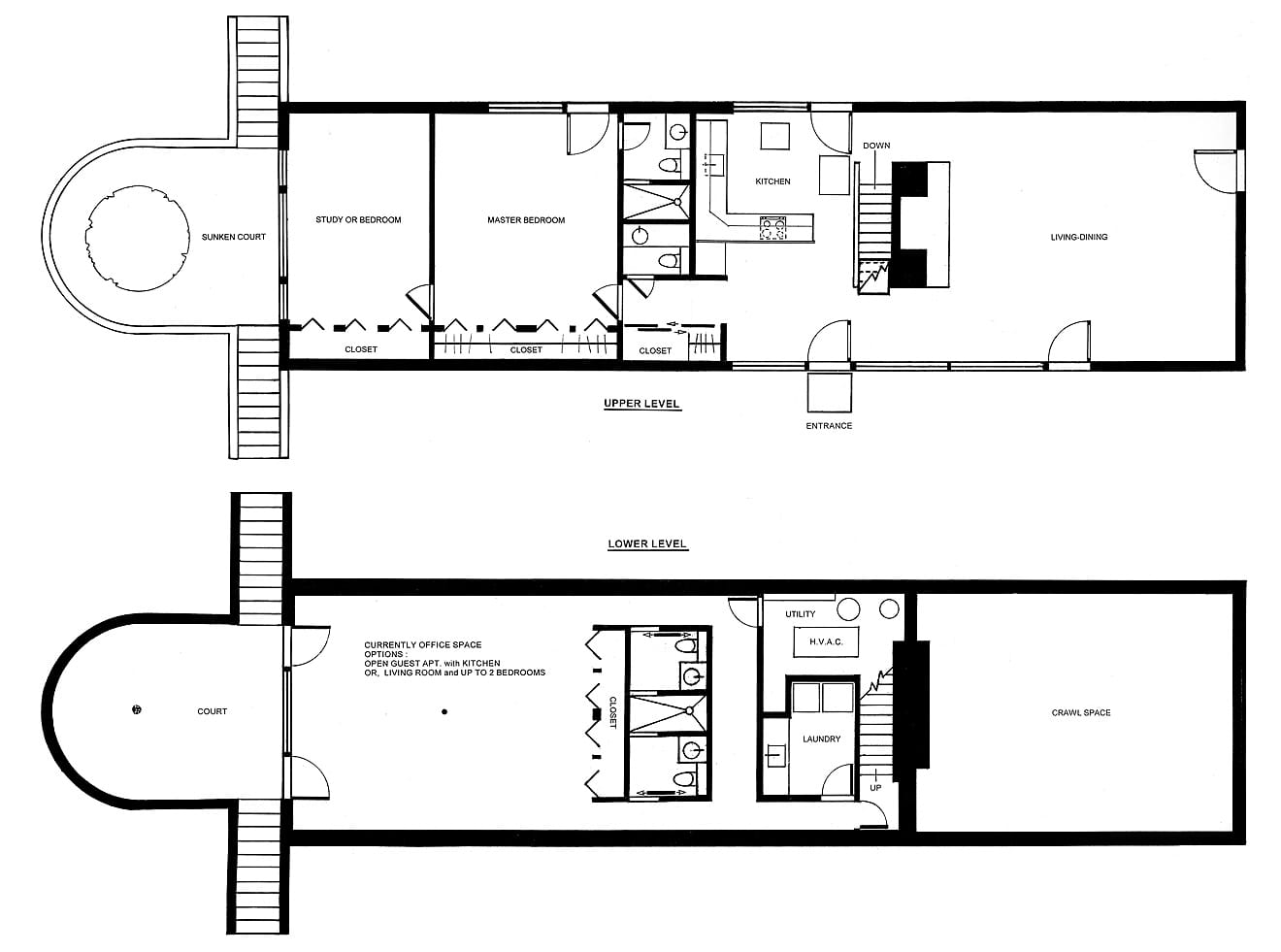
The house maintains Johnson’s original rooms and fixtures, but Damora’s parents expanded it in the early ’60s by building a sunken courtyard and a subterranean space to accommodate their growing family. Originally designed for just two people, the open, flowing plan made for a highly intimate space for a family to permanently reside in.
“We saw an awful lot of each other,” Damora said. “There’s not a lot of privacy … We were probably the only modern house in Bedford. My classmates who came over thought it was very peculiar. It certainly felt small and very foreign to them, as they were used to these large colonial-style houses.”
The ideal buyer, he said, would simply be someone looking for a Glass House for themselves who can afford to maintain the Booth House predominantly as it has remained under the care of his parents. The home does not have any historic preservation easements, so its future owner won’t face restrictions on updates or renovations. Damora said he has already received calls from interested parties since listing the house on the website of the preservation advocacy nonprofit Docomomo, but a sale has yet to be finalized.
“You get to experience nature from the comfort of home (often with a fire roaring on the hearth) as if you are out in it,” he recalled from his years living in the unique space. “Not like you are only getting a glimpse of it through the narrow porthole of a small, double-hung colonial window.”






