Rezoning Plan Could Grant More Space for Luxury Condos in Greenwich Village
Today in NYC news, the Greenwich Village Historic Preservation Society dropped a press release in our inbox this afternoon on the rezoning of the shuttered St. Vincent's Hospital site on Seventh Avenue between West 12 and 11 Street that could allow luxury condominiums to rise in its place.

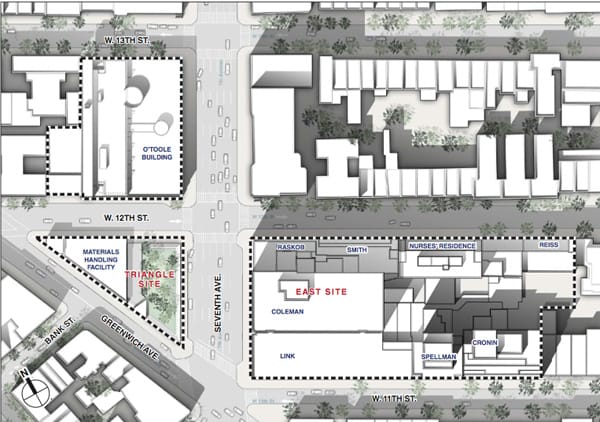
Today in Manhattan news, the Greenwich Village Historic Preservation Society dropped a press release in our inbox this afternoon on the rezoning of the shuttered St. Vincent’s Hospital site on Seventh Avenue between West 12 and 11 Street that could allow luxury condominiums to rise in its place. According to GVHPS, the City Planning Commission has voted in favor of Rudin Management’s request for rezoning, which will grant the developer the same zoning privileges that St. Vincent’s obtained in 1979 to construct new hospital buildings. The decision is now one step closer to being approved and will move to the City Council next for public hearings and a vote. If passed by the City Council, the rezoning plan will go into effect.
What does this mean for the Greenwich Village neighborhood? Rudin Management hopes to convert four of the existing hospital buildings into condos and demolish four others, including the Coleman and Link buildings, for residential development. Although the entire site is landmarked, the Landmarks Preservation Commission has authorized four out of the eight buildings to be knocked down because they were built not so long ago in the 1980s. The other four, built in the 1920s, will retain landmark status for their architectural integrity that is consistent with the fabric of the Greenwich Village historic district. St. Vincent’s Hospital itself is a historically significant site that provided medical care to the Greenwich Village neighborhood for over 160 years. Unfortunately as the neighborhood changed and grew wealthier, the hospital failed to adapt and closed its doors in 2010 after sinking millions of dollars into debt.

For Andrew Berman, Executive Director of the GVHPS, the most worrisome issue here is Rudin Management’s campaign to override city zoning principles. Normally only public service buildings, such as hospitals, museums and schools, are granted an area of such high density (the amount of square feet that can be built on) while private, residential development is restricted to a much lower density. The 1979 rezoning of St. Vincent’s reflected these guidelines, and the notion that these privileges may now be given to a luxury condo development could potentially make developers much more powerful than they already are. “If anything this shows that developers are having a much easier time than the rest of us, even in these precarious times,” Berman told Hyperallergic.
The GVHPS also takes issue with one of the four buildings that the LPC designated for demolition, claiming that one of the structures is virtually identical to the four that have been preserved.
The surrounding community have been calling out against the rezoning project for months, demanding the return of a full-service hospital to Greenwich Village. Many take issue with Rudin Management’s other plan to convert the O’Toole building at 30 Seventh Avenue into a medical facility consisting of a 24-hour emergency department, imaging center, ambulatory surgery facility and 24-hour ambulance services. Opposing members in the neighborhood insist that this will not be enough to provide comprehensive health care to the community.
Berman noted that he does not know yet what the City Council’s decision will be, but the GVHPS plans to fight tooth and nail against the rezoning.
Home page image via DNAinfo.